- INICIO
- OFERTAS #sidelong-menu { background-color: yellow; }
- Caleta – La Uvita – Cumayasa (LA ROMANA)
- PROYECTOS
- VENTAS
- ALQUILERES
- CONTACTO
- BLOG
- FAQs
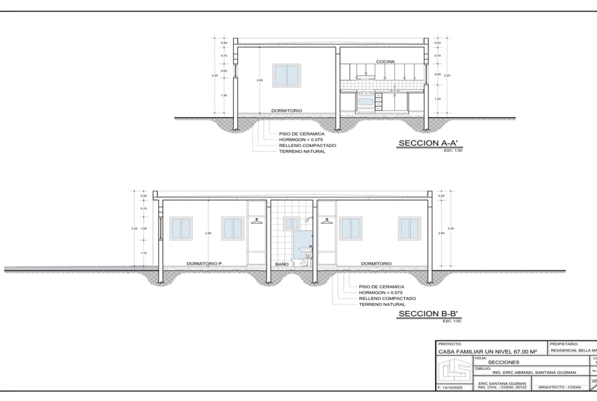
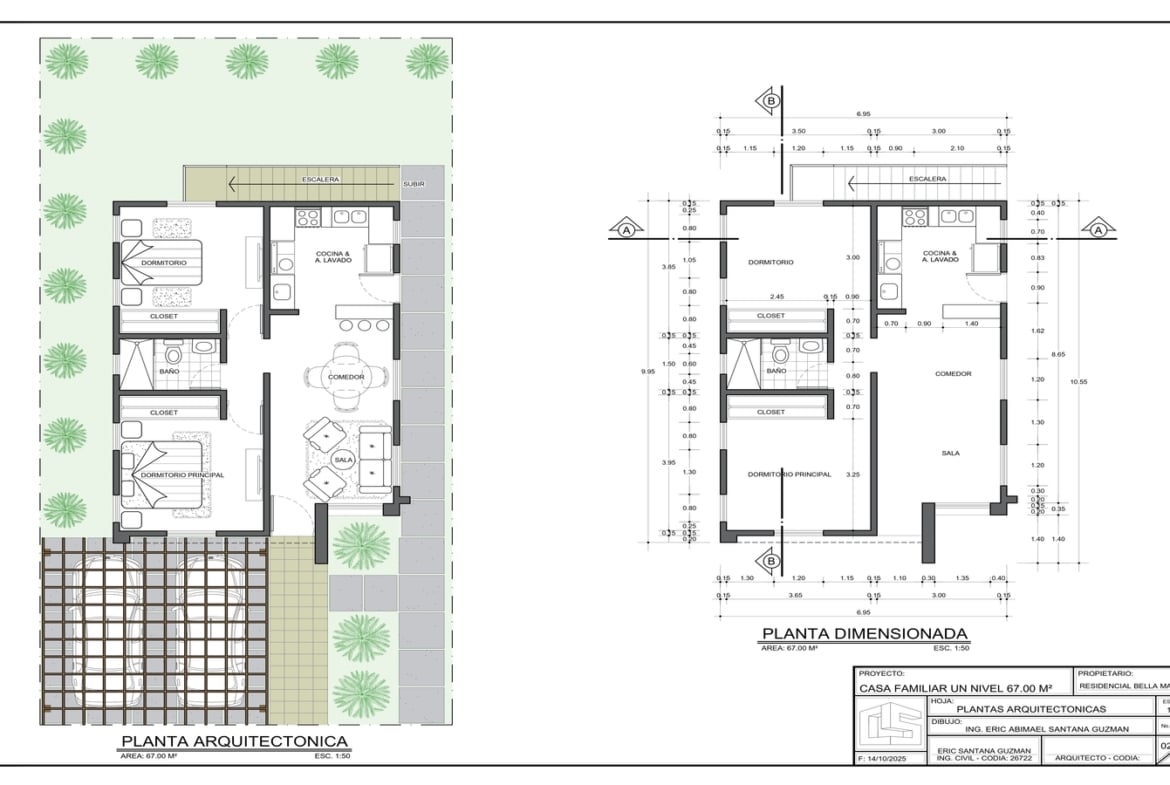
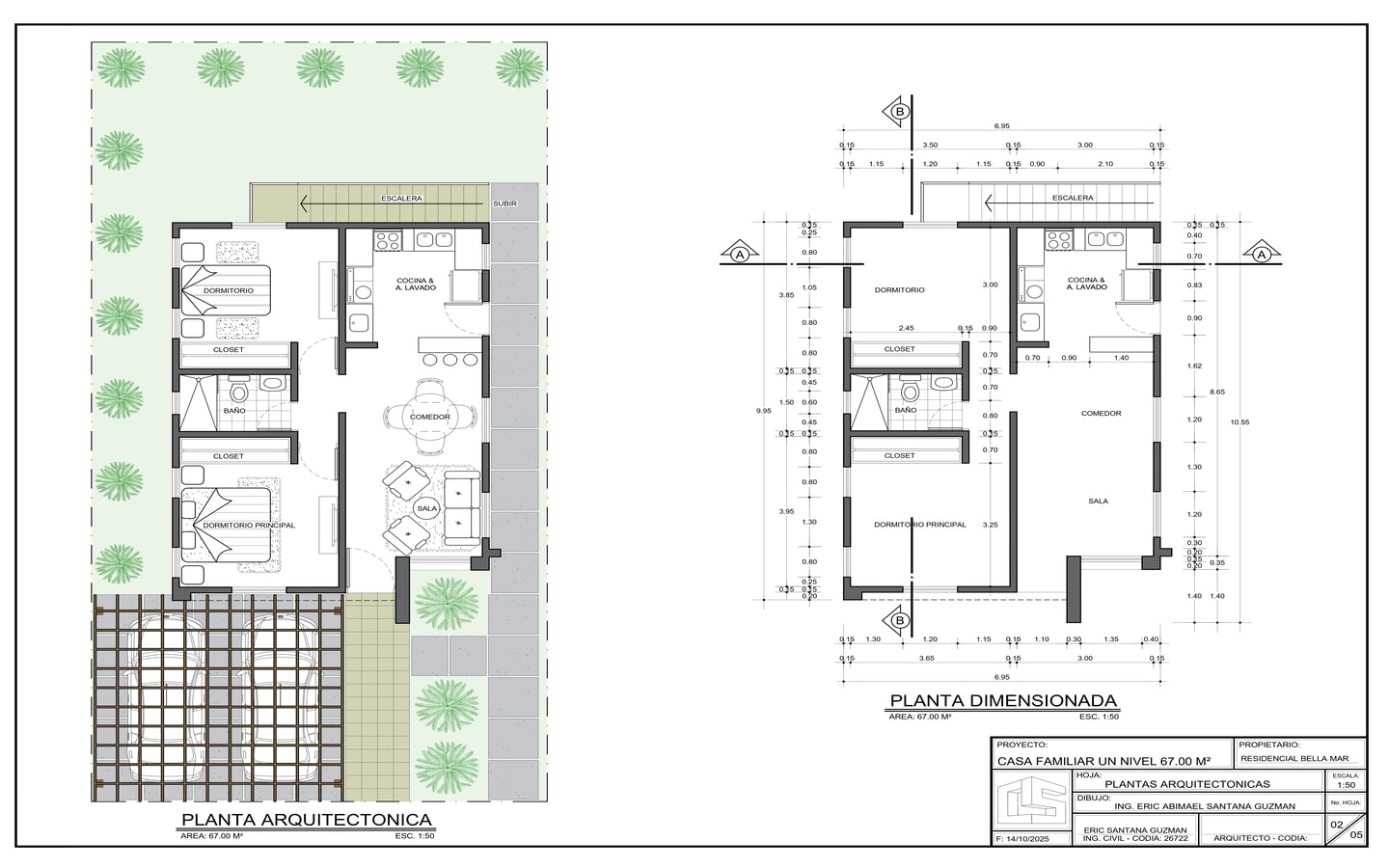
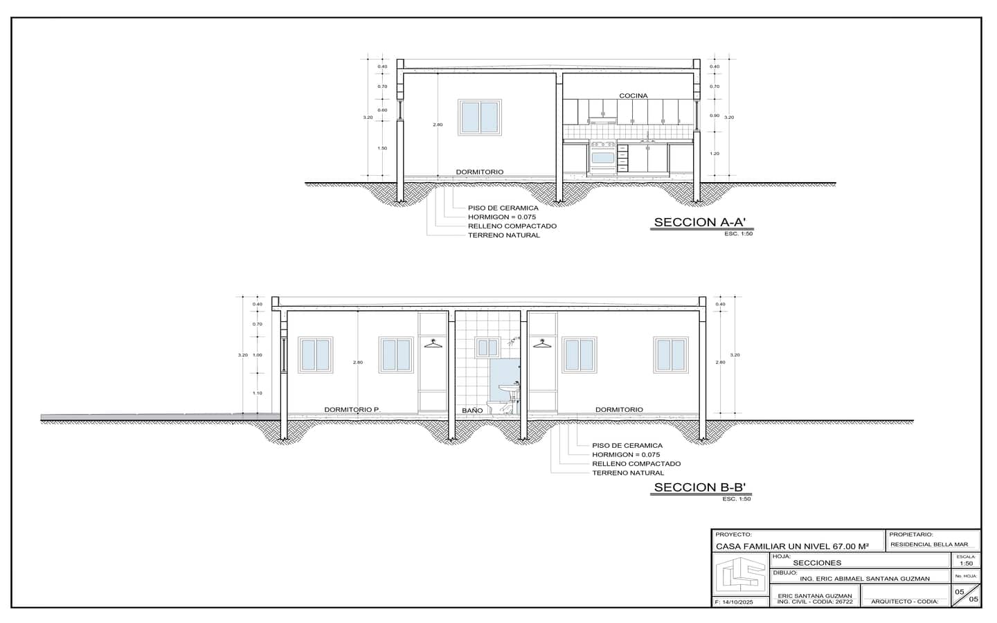
¿Desea una casa de venta en Caleta – La Romana? Precios en oferta en planos en Bella Mar Village Caleta. Este nuevo proyecto te ofrece precios preferenciales, en el caso de este modelo de 67 M2 y 1 nivel, tiene una mezcla de lo moderno y lo funcional.
Es importante destacar que los 67 M2 son de área útil, o sea que solo hablamos del interior de la casa, si ahora o a futuro desea una marquesina doble, podemos construírsela o construirla usted más adelante, lo que transformaría la casa en una de 92 M2, asumiendo que la marquesina tuviera 25 M2, pero usted puede decidir el tamaño, la aprobación de cualquier diseño o remodelación, debe ser realizada por la administración.
ABAJO A LA DERERECHA TIENE EL ICONO DE WHATSAPP, PARA HABLAR DE FORMA DIRECTA CON NOSOTROS.
Al final de esta publicación hay un video del club house del proyecto, el cual tiene control de acceso, piscina de adultos y niños, cancha de basket ball, cocina con BBQ y otras amenidades.
PRECIO: Por tiempo limitado es de U$75,000.00 o sea aproximadamente RD$4,800,000.00 (Asumiendo una tasa promedio de RD$64 por cada U$1.00.
El inicial del 40% sería U$ 30,00o.00 RD$ 1,920,000.00, pero usted elige con cuanto desea separar y nos adaptamos a usted tanto como sea posible al plan de pago y para completar su inicial tiene hasta diciembre del 2026.
La cuota seria aproximadamente U$559 (Aprox RD$35,800). Las casas son para entrega en diciembre 2026 (Si desea recibir su vivienda de forma rápida, nos informa, coordinamos el inicial y/o plan de pago y evaluamos una fecha de entrega juntos) y otras etapas posteriores, dependiendo de varios factores, como son que tan rápido o no desea la casa, que mucho o poco plazo desee para completar su inicial y otros factores a dialogar en persona.
Si desea un plazo mas allá de diciembre del 2026, para tener un plan de pago mas flexible en su mensualidad, y aun asi desea recibir su casa para diciembre 2026, contáctenos y le explicamos otras formas de pago al respecto.
Si desea una casa de 2 niveles, puede ver el modelo de un nivel de 120 M2, : CLICK AQUI
El precio es en terrenos de 200 M2, en caso de desear un terreno más grande, si está disponible, sería solo pagar los metros adicionales a los 200M2, a razón de U$125.00 por cada M2 adicional de terreno, por ejemplo, comprar esta casa en un terreno de 240M, se pagaría el precio de la casa más 40M2 x U$125.00 = U$5,000.00, adicionales al precio de la casa, no tiene que pagar esa totalidad adicional al inicial, sino que se incluye en el precio y del total, pagara el inicial.
En el menú de esta página web, opción proyectos, puede filtrar los proyectos por casas, apartamentos o terrenos, si desea ver opciones diferentes.
Si desea ver cómo va el malecón de caleta: CLICK AQUI
Ver los proyectos disponibles próximos a la zona de Caleta: CLICK AQUI
Por el financiamiento bancario, no se preocupe, nuestro fundador el Sr. Xander Reyes laboro en el sector financiero bancario, alrededor de 16 años y usted recibirá la asesoría correcta, ya sea del Sr. Xander o cualquiera de nuestros asesores.
¿Puedo financiar si vivo fuera del país? Claro que si, sea usted empleado o empresario fuera del país, los documentos básicos serian su reporte de impuestos de los últimos 2 años, movimiento de cuenta de 6 meses, carta de trabajo si es empleado, copia de identificación y se utilizara el crédito del país donde resida, es decir no debe preocuparle sino tiene historial crediticio en el país.
¿Debo ir al país para firmar el contrato inicial? No, al momento del contacto con nosotros coordinamos no se preocupe.
¿Debo ir al país para hacer el financiamiento, cuando me vayan a entregar la casa? No, eso lo coordinamos al momento del financiamiento bancario, tiene varias opciones: Venir, enviar un poder o dejar un poder en uno de esos viajes que venga.
UBICACIÓN: En ese álbum hay una foto que tiene una toma con el drone, donde se muestra la ubicación de Bella Mar Village y otros proyectos, para mejor entendimiento, también esta en Google Maps y explicando queda ubicado al oeste / puesta del sol de Palmares de Caleta.
Y recuerde: NO COMPRE SIN CONSULTARNOS!!!
Comparar listados
Comparar